ようこそ ゲスト 様

城陽市寺田西ノ口 新築戸建

お問い合わせ番号:113201-5788
不動産/新築一戸建て
城陽市寺田西ノ口 新築戸建
城陽市寺田西ノ口
近鉄京都線 寺田 ( 徒歩 8分 )
寺田西小学校  / 西城陽中学校
価格 3680.00万円(税込)
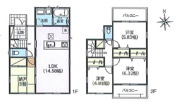
間取り 3SLDK
物件の詳細、周辺環境、内覧のご予約など、お気軽にお問い合わせください。
建物/専有
面積
85.99㎡
(26.01坪)
土地面積 109.90㎡
(33.24坪)
築年月 2025年11月
(令和7年11月)
駐車場 有/2台 地上階数 2階 地下階数 -
構造 木造
接道状況 公道 北 5.97m 
用途地域 第一種低層住居専用地域
都市計画 市街化区域
地目 宅地
建ぺい率 50%
容積率 80%
国土法 不要
計測方式 登記
土地権利 所有権
不動産の現況 新築
入居/引渡 相談 
取引 仲介
■延床面積1F: 48.15㎡(14.56坪)
■延床面積2F: 37.84㎡(11.44坪)

■ガス:都市ガス
■水道:公営水道
■汚水:公共下水
■雑排水:公共下水
■学校区:
寺田西小学校(城陽市)
西城陽中学校(城陽市)

城陽市寺田西ノ口 新築戸建の特徴・設備

※特徴・設備名をクリックすると物件の一覧へ移動します。

住宅ローンシミュレーション

ローンシミュレーション条件
頭金 万  
ボーナス払い
(年2回)
万  
借入利率 %  
借入年数 年  
ローンシミュレーション結果
借り入れ金額 36,800,000
月々の返済額
(ボーナス月以外の年10回)
105,259/月
ボーナス月の返済額
(年2回)
105,259/月
年間の返済額 1,263,108
総支払額
(頭金含む)
44,208,780
  • ※元利均等返済方式でシミュレーションしています。
  • ※実際のご返済額はその他の条件により計算結果と異なりますので、予めご了承ください。
  • ※シミュレーション結果はご返済の目安としてご利用ください。また、将来のお借り入れを約束するものではありません。
城陽市寺田西ノ口 新築戸建 のことならお気軽にご相談ください。
センチュリー21サンコスモ 交野店
TEL:072-810-3033
営業時間:9:30-19:00
定休日 :水曜日             
メールでのお問い合わせ

お電話の場合は物件番号 < 113201-5788 > を伝えていただくとスムーズにお応えできます。

新型コロナウイルス感染拡大防止の取り組みについて

現在のお取り扱い物件数

購入物件
49
賃貸物件
828

登録1分、会員用非公開物件を見る!

無料会員登録 ログイン
    • センチュリー21のリースバック
  • 店舗紹介
    交野店
    吹田関大前店
    会社概要・アクセスマップ
    スタッフ紹介
    • 吹田関大前店
    • スタッフブログ
    • スマホから簡単アクセス
    • suumo
    城陽市寺田西ノ口 新築戸建の最新情報を掲載しています。城陽市寺田西ノ口 新築戸建の周辺環境、インターネットに掲載以外の物件等、何でもお気軽にご相談下さい。